OPENMarket

Advanced Studio II, Spring 2020

 

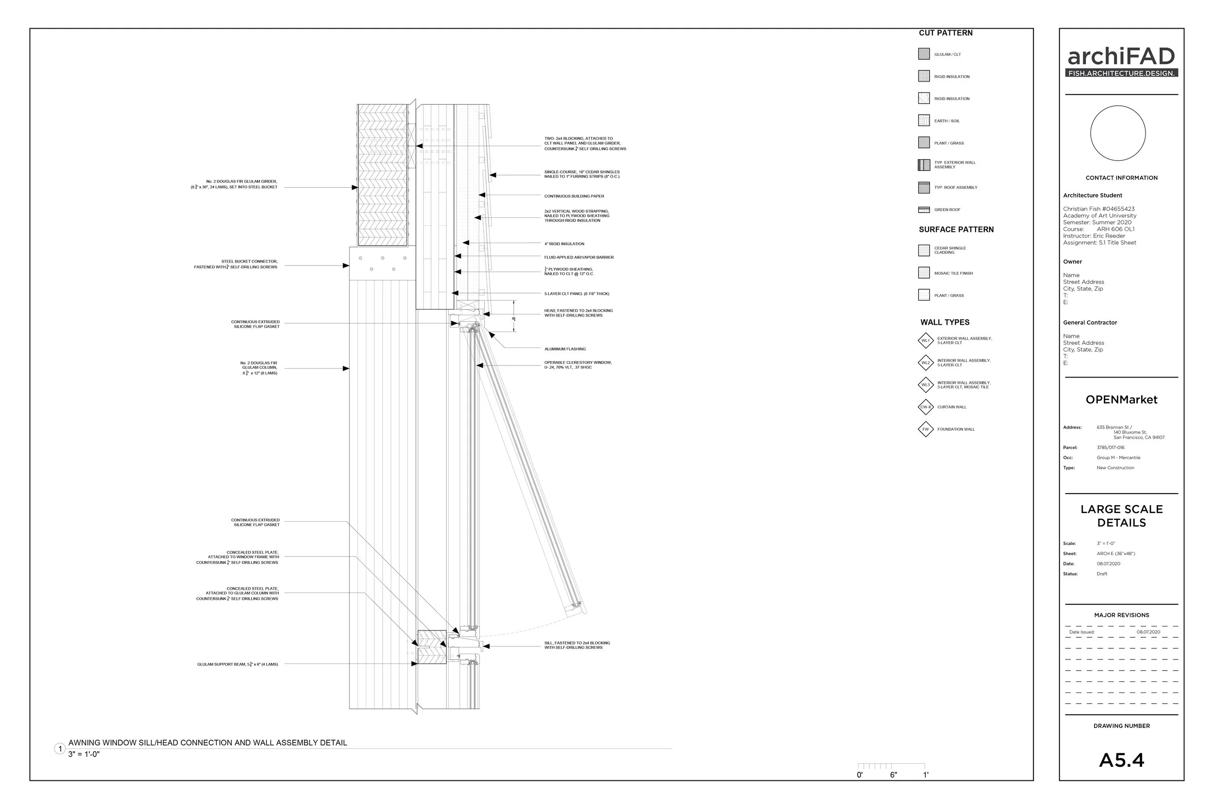
Located in San Francisco’s Central SOMA neighborhood, this vendor marketplace brings an opportunity for human-nature connection to a busy urban setting, maximizing the connection between interior and exterior while giving back to the environment throughout its lifetime.

Previous
Previous

Outer Mix

Next
Next

New National Museum